К 5

Чертеж изделия:
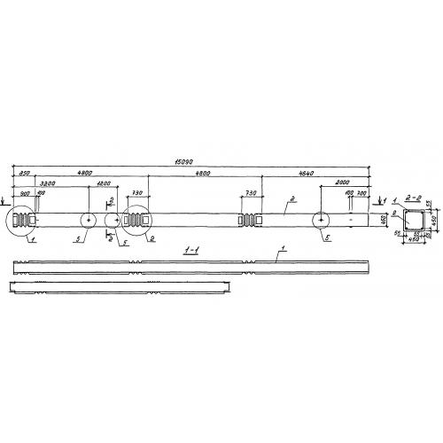
Характеристики изделия:
ПараметрЗначение
длина15090 мм
ширина450 мм
высота450 мм
масса7600 кг
нормативный документГОСТ 27108-86

К 5  Колонны ГОСТ 27108-86.