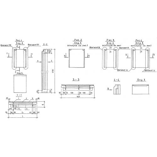
3НЦ 10.22.30

Чертеж изделия:
Характеристики изделия:
ПараметрЗначение
длина1025 мм
ширина300 мм
высота2230 мм
вес1270 кг
серия1.117.1-14

3НЦ 10.22.30 Стеновые цокольные панели по серии 1.117.1-14.