Б 24
Характеристики изделия:
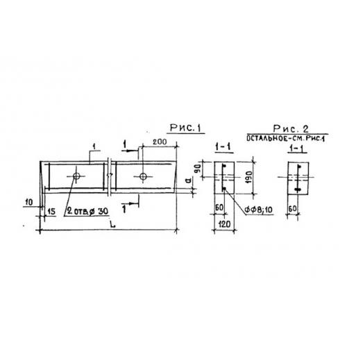
| Параметр | Значение |
|---|---|
| длина | 2450 мм |
| ширина | 120 мм |
| высота | 190 мм |
| вес | 140 мм |
| серия | 1.139-1 |
Цена:
Рассчитать стоимостьБ 24 Перемычки брусковые по серии 1.139-1.
| Параметр | Значение |
|---|---|
| длина | 2450 мм |
| ширина | 120 мм |
| высота | 190 мм |
| вес | 140 мм |
| серия | 1.139-1 |
Б 24 Перемычки брусковые по серии 1.139-1.
.jpg)