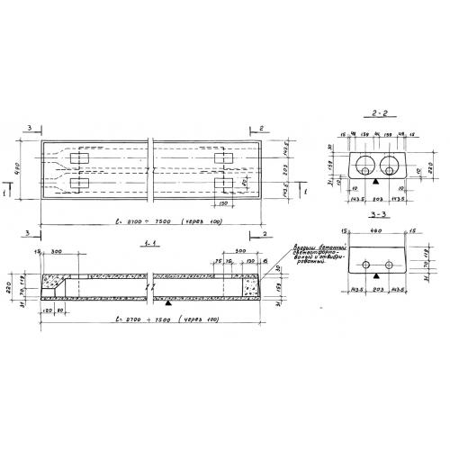
БПК 42.5

Чертеж изделия:
Характеристики изделия:
ПараметрЗначение
длина4200 мм
ширина490 мм
высота220 мм
вес700 кг
серия1.141 КР-1

БПК 42.5 Панель перекрытия без выпускных ребер. Панели перекрытия многопустотные по серии 1.141 КР-1.