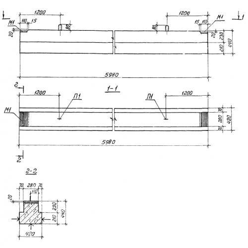
П 40-60 прогоны таврового сечения

Чертеж изделия:
Характеристики изделия:
ПараметрЗначение
длина5980 мм
ширина420 мм
высота440 мм
масса2280 кг
нормативный документСерия 1.225-2

П 40-60  Прогоны таврового сечения Серия 1.225-2.