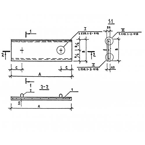
ПП 15.8 плиты парапетные

Чертеж изделия:
Характеристики изделия:
ПараметрЗначение
длина1490 мм
ширина800 мм
высота80 мм
масса200 кг
нормативный документСерия 1.238.1-2

ПП 15.8  Плиты парапетные Серия 1.238.1-2.