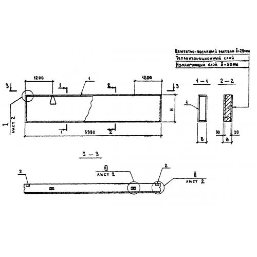
ПСД 60.9.30

Чертеж изделия:
Характеристики изделия:
ПараметрЗначение
длина5980 мм
ширина300 мм
высота880 мм
вес3000 кг
серия1.832.1-9

ПСД 60.9.30 Панели стеновые двухслойные по серии 1.832.1-9.