Б 15

Чертеж изделия:
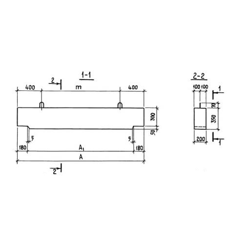
Характеристики изделия:
ПараметрЗначение
длина1860 мм
ширина200 мм
высота350 мм
масса330 кг
нормативный документСерия 3.006.1-3/83

Б 15 Балки тоннелей Серия 3.006.1-3/83.