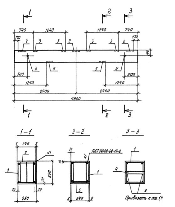
Т 4

Чертеж изделия:
Характеристики изделия:
ПараметрЗначение
длина4800 мм
ширина250 мм
высота290 мм
масса870 кг
нормативный документСерия 3.016.1-9

Т 4  Траверсы Серия 3.016.1-9.