СВ 95-2

Чертеж изделия:
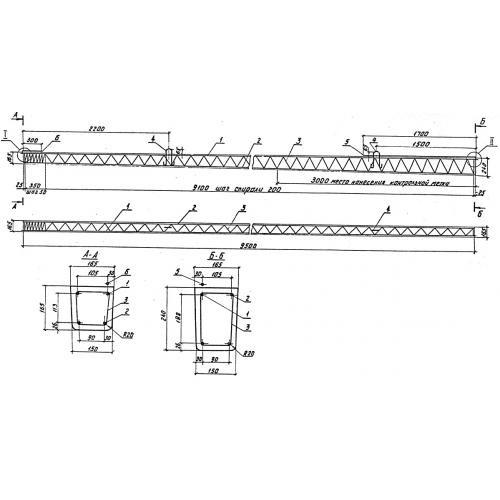
Характеристики изделия:
ПараметрЗначение
длина9500 мм
ширина165 мм
высота240 мм
масса750 кг
нормативный документСерия 3.407.1-136

СВ 95-2   Стойки вибрированные железобетонные для опор ЛЭП,  Серия 3.407.1-136.