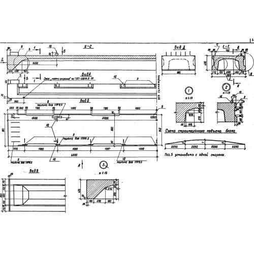
ПР-9

Чертеж изделия:
Характеристики изделия:
ПараметрЗначение
длина9000 мм
ширина980 мм
высота450 мм
вес5000 кг
серия3.503-29

ПР-9 Плиты ребристые по серии 3.503-29.