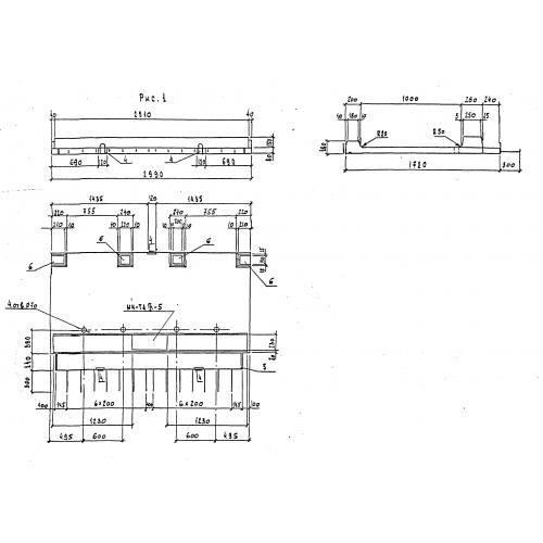
Т 100.15
Характеристики изделия:
| Параметр | Значение |
|---|---|
| длина | 2990 мм |
| ширина | 1720 мм |
| высота | 180 мм |
| вес | 1500 кг |
| серия | 3.503.1-108 |
Цена:
Рассчитать стоимостьТ 100.15 Тротуарные блоки по серии 3.503.1-108.
| Параметр | Значение |
|---|---|
| длина | 2990 мм |
| ширина | 1720 мм |
| высота | 180 мм |
| вес | 1500 кг |
| серия | 3.503.1-108 |
Т 100.15 Тротуарные блоки по серии 3.503.1-108.
