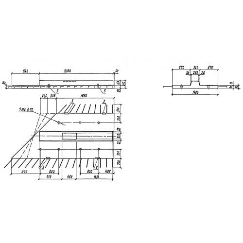
РП 15 блок разделительной полосы
Характеристики изделия:
| Параметр | Значение |
|---|---|
| Длина | 3320 мм |
| ширина | 2060 мм |
| высота | 240 мм |
| вес | 1100 кг |
Цена:
Рассчитать стоимостьРП 15 Блоки разделительной полосы по серии 3.503.1-81.
| Параметр | Значение |
|---|---|
| Длина | 3320 мм |
| ширина | 2060 мм |
| высота | 240 мм |
| вес | 1100 кг |
РП 15 Блоки разделительной полосы по серии 3.503.1-81.
