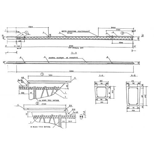
СВ 95
Характеристики изделия:
| Параметр | Значение |
|---|---|
| длина | 9500 мм |
| ширина | 175 мм |
| высота | 245 мм |
| вес | 750 кг |
| серия | 3.507 КЛ-10 |
Цена:
Рассчитать стоимостьСВ 95 Стойки вибрированные по серии 3.507 КЛ-10.
| Параметр | Значение |
|---|---|
| длина | 9500 мм |
| ширина | 175 мм |
| высота | 245 мм |
| вес | 750 кг |
| серия | 3.507 КЛ-10 |
СВ 95 Стойки вибрированные по серии 3.507 КЛ-10.
