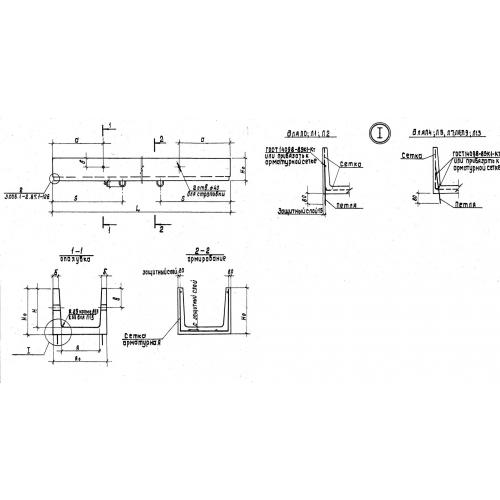
Л 0а лоток

Чертеж изделия:
Характеристики изделия:
ПараметрЗначение
длина2970 мм
ширина330 мм
высота360 мм
масса380 кг
нормативный документСерия 3.900.1-12

Л 0а Лотки теплотрасс по Серии 3.900.1-12.