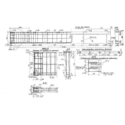
Б 748

Чертеж изделия:
Характеристики изделия:
ПараметрЗначение
длина7480 мм
ширина700 мм
высота250 мм
масса2040 кг
нормативный документСерия ИИ 10Ж-1

Б 748 Балки тавровые по Серии ИИ 10Ж-1.