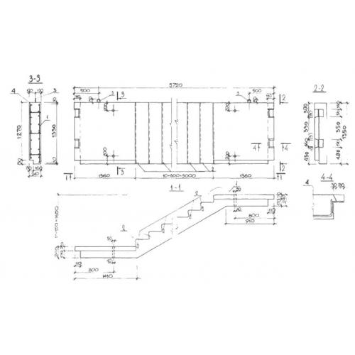
ЛМ 16.5-13.5 лестничные марши

Чертеж изделия:
Характеристики изделия:
ПараметрЗначение
длина5720 мм
ширина1350 мм
высота1650 мм
масса4950 кг
нормативный документСерия КУБ 2.5

ЛМ 16.5-13.5  Лестничные марши Серия КУБ 2.5.