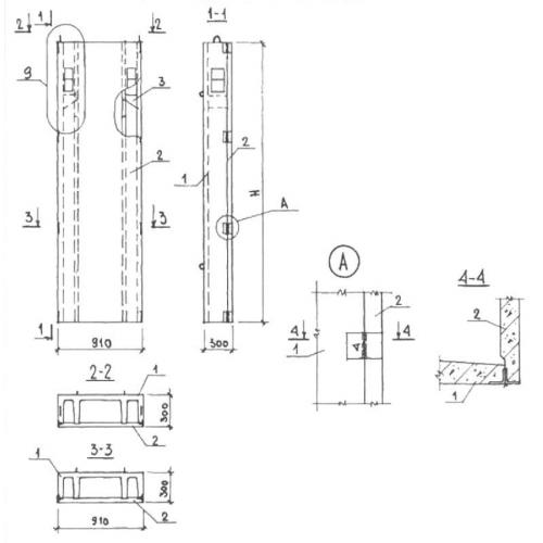
ВБ 9-28 вентблоки

Чертеж изделия:
Характеристики изделия:
ПараметрЗначение
длина2580 мм
ширина910 мм
высота300 мм
масса869 кг
нормативный документСерия КУБ 2.5

ВБ 9-28  Вентиляционные блоки Серия КУБ 2.5.