ПС 2

Чертеж изделия:
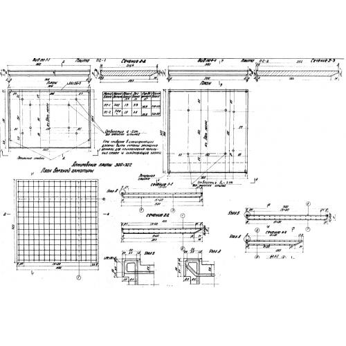
Характеристики изделия:
ПараметрЗначение
длина3060 мм
ширина3220 мм
высота210 мм
масса4800 кг
нормативный документТП 501-166

ПС 2 Плиты по Типовому проекту ТП 501-166.